|
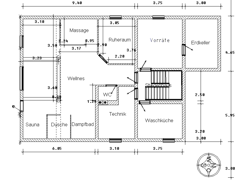
Einen Tag vor dem Verputzen haben wir uns für die endgültige Lage der
Zwischenwände im Wellnes Bereich entschieden. Armin hat gestern nacht um
2 Uhr früh mit Geri noch alles ausgemacht. Schon ein halbes Jahr lang machte
es uns schwere Kopfzerbrechen wie wir den Wellnesbereich aufteilen sollen.
Wir haben uns ein Architekturbuch besorgt, in welchem die empfohlenen Maße
angeführt sind. Bei den Bad und Saunafirmen konnte uns auch niemand helfen,
da alle glaubten, dass wir einen öffentlichen Bereich planen und die Firmen selbst
zumeist keine Planer haben. Architekten aus diesem Bereich sind eigentlich
auch nur an öffentlichen Aufträgen interessiert und nur mit großen Kosten dazu
bereit sind, einen privaten Wellnesbereich zu planen.
|
 zum vergrößern anklicken
|
|
Einen kompetenten Partner der uns unterstützte fanden wir bei der Firma SSC in Linz
in der Person des Herrn Mittmannsgruber.
Dieser gab uns schon im Mai einige wertvolle Tips zur Planung dieses Bereiches.
Unser Problem war jedoch, dass wir auch nicht wußten, wie wir es genau machen
sollten. Zuerst dachten wir daran, dass alles erst später in Trockenausbau
zu machen. Armin meinte jedoch, dass es besser wäre, es gleich massiv zu
machen.
|
 Ruheraum
|
|
Das vergangene Wochenende war auch sehr arbeitsreich, da wir die
Lüftungskanäle für die kontrollierte Raumlüftung einstemmen mussten. Geplant
wurde die gesamte Lüftung von Herrn Fragner einem Lüftungsspezialisten der
Firma Aumayr aus Steyregg. Bei alldem hatten wir einen riesen Stress, da am
Dienstag die Verputzer kommen.
Mehr dazu an einem anderen Tag.
|
 Massagebereich
|